Sign up to get new listings emailed daily! JOIN SIGN IN
Sarah Dyer
REALTOR®
VCard Icon 

1122 Post Road, Bowdoinham, ME 04008

$369,000
  • Main Photo

4 Total Photos [Click to View All]

New to the Market Active
BEDS2 BATHS2 full SQUARE FEET1,120 MLS#1658943
STATUSActive PROPERTY TYPEResidential - Single Family SCHOOLMachias Public Schools

Property Description

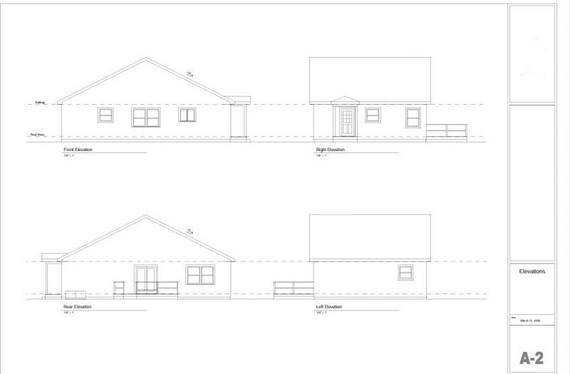
Get in early, and you can choose many of the finishes for this new-construction ranch in Bowdoinham. The well and septic are in. The foundation is in place, and the walls are going up now! allowance for kitchen appliances, lighting, kitchen cabinets, and countertops.Plans show a two-bedroom layout. The third bedroom would go where the kitchen is, and the kitchen would move over to the open living area. Great location for commuting to Brunswick, Augusta, and the Lewiston-Auburn areas.

1122 Post Road | MLS# 1658943

This single family home located at 1122 Post Road, Bowdoinham, ME 04008 is currently listed for sale with an asking price of $369,000. This property was built in 2026 and has 2 bedrooms and 2 full baths with 1120 sq. ft. Post Road is located within the Machias Public Schools school district. Search Bowdoinham real estate on sarahdyer.masiellogrouprealestate.com today.

Property Features

Property Type: Residential - Single Family
Basement: Bulkhead, Exterior Entry
Cooling: Heat Pump
Heating: Heat Pump
Home Style: Ranch
Lot Size: 1.00 Acres
Roof Type: Shingle
Taxes: $1,795
Year Built: 2026

Feature Descriptions

Electric: Circuit Breakers
Flooring: Hardwood
Sewer: Private Sewer
Special View Info: Trees/Woods
SQ FT Above Grade: 1120
SQ FT Below Grade: 0
Total Rooms: 4
Water: Well

Local Schools

School District: Machias Public Schools

Listed By / Shown By

Listed By

Agency Name: Keller Williams Realty
Agency Phone: 207-879-9800
Agent Name: Karen Farnsworth

Shown By

Agent Name: Sarah Dyer
Agent Phone:
Agency Title: Better Homes and Gardens Real Estate The Masiello Group

IDX logo

TOUR THIS HOME

Choose a date and time to see 1122 Post Road, Bowdoinham, ME 04008.
I will get in touch with you shortly.

Request a Showing
Choose your video chat app
  • Friday April 24
  • Saturday April 25
  • Sunday April 26
  • Monday April 27
  • Tuesday April 28
  • Wednesday April 29
  • Thursday April 30
  • Friday May 1
  • Saturday May 2
  • Sunday May 3
  • Monday May 4
  • Tuesday May 5
  • Wednesday May 6
  • Thursday May 7
  • Friday May 8
  • 7:00 AM
  • 7:30 AM
  • 8:00 AM
  • 8:30 AM
  • 9:00 AM
  • 9:30 AM
  • 10:00 AM
  • 10:30 AM
  • 11:00 AM
  • 11:30 AM
  • 12:00 PM
  • 12:30 PM
  • 1:00 PM
  • 1:30 PM
  • 2:00 PM
  • 2:30 PM
  • 3:00 PM
  • 3:30 PM
  • 4:00 PM
  • 4:30 PM
  • 5:00 PM
  • 5:30 PM
  • 6:00 PM
  • 6:30 PM
  • 7:00 PM
  • 7:30 PM
  • 8:00 PM
  • 8:30 PM
  • 9:00 PM
Preferred Communication Method

Estimate Your Payment

Estimated Payment

$ 1,078.44 per month $821.23 Principal & Interest $149.58 Property Tax $107.63 Homeowner's Insurance

Change Payment Information

%
years/fixed
yearly
yearly (est.)
(Payments are an estimate and may vary by lender)
Disclaimer: All information deemed reliable but not guaranteed. All properties are subject to prior sale, change or withdrawal. Neither listing broker(s) or information provider(s) shall be responsible for any typographical errors, misinformation, misprints and shall be held totally harmless. Listing(s) information is provided for consumers personal, non-commercial use and may not be used for any purpose other than to identify prospective properties consumers may be interested in purchasing. Information on this site was last updated 04/23/2026. The listing information on this page last changed on 04/23/2026. The data relating to real estate for sale on this website comes in part from the Internet Data Exchange program of Delta Media Group MLS (last updated Thu 04/23/2026 12:01:02 AM EST) or MLSPIN MLS (last updated Wed 04/22/2026 11:38:30 PM EST) or Prime MLS (last updated Wed 04/22/2026 11:33:16 PM EST) or MREIS (last updated Wed 04/22/2026 11:55:22 PM EST). Real estate listings held by brokerage firms other than Better Homes and Gardens Real Estate The Masiello Group may be marked with the Internet Data Exchange logo and detailed information about those properties will include the name of the listing broker(s) when required by the MLS. All rights reserved.



Listing data is derived in whole or in part from the Maine IDX & is for consumers' personal, noncommercial use only. Dimensions are approximate and not guaranteed. All data should be independently verified.© 2026 Maine Real Estate Information System, Inc. All Rights Reserved.

Privacy Policy / DMCA Notice / ADA Accessibility

Agency License Information: Better Homes and Gardens® and the Better Homes and Gardens Real Estate Logo are registered service marks owned by Meredith Corporation and licensed to Better Homes and Gardens Real Estate LLC. The Masiello Group Limited fully supports the principles of the Fair Housing Act and the Equal Opportunity Act. Each franchise is independently owned and operated. Any services or products provided by independently owned and operated franchisees are not provided by, affiliated with or related to Better Homes and Gardens Real Estate LLC nor any of its affiliated companies.


Login to My Homefinder

Pixel